Google Calendar

Disponibilités

Nos coordonnées 

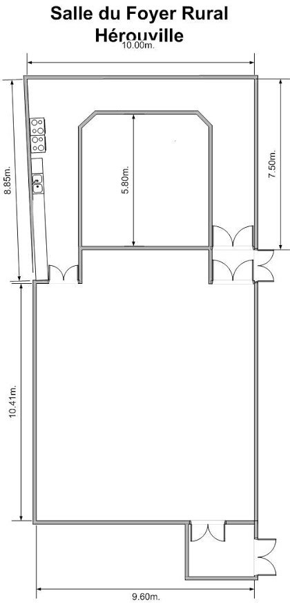
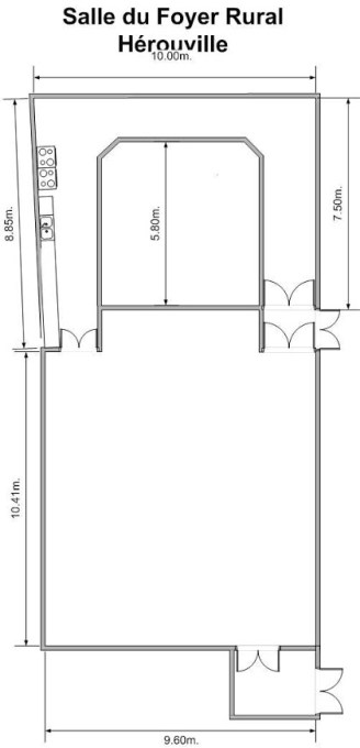
Foyer Rural d'Hérouville en Vexin
Place de l'église

95300 Hérouville en Vexin

Tél: 06.59.76.47.78

e-mail: contact@foyer-rural-herouville.fr

Recommandation

Version imprimable | Plan du site
© Foyer Rural d'Hérouville en vexin